Baublog von Susi und Sven
Was war wann, wie und warum ...?!
Dienstag, 5. März 2013
Die aktuellen und hoffentlich finalen Grundrisse
Eingestellt von
Susi
um
22:53
Labels:
Grundriss
,
Planung
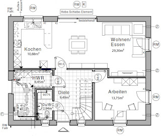
Hier will ich Euch noch die aktuellen Grundrisse zeigen. Diesmal auch (auf besonderen Wunsch) mit den Angaben der Größe der Zimmer.
Grundriss Erdgeschoss
Grundriss Obergeschoss
Keine Kommentare:
Kommentar veröffentlichen
Neuerer Post
Älterer Post
Startseite
Abonnieren
Kommentare zum Post (Atom)
Keine Kommentare:
Kommentar veröffentlichen